Virtueller Rundgang
Willkommen zu einem virtuellen Rundgang durch den öffentlichen Bereich des Fachgerichtszentrums Braunschweig. Hier finden Sie neben einer Übersichtskarte auch eine Bildergalerie, durch welche Sie einen ersten Eindruck von den hiesigen Räumlichkeiten gewinnen können.
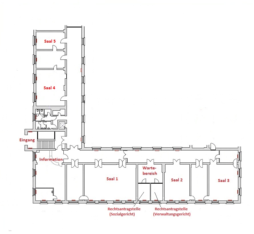
Eingangsbereich des Fachgerichtszentrums Braunschweig, in welchem das Sozialgericht Braunschweig und das Verwaltungsgericht Braunschweig gemeinsam untergebracht sind. Links ist der Fristbriefkasten, rechts der barrierefreie Eingang zu sehen.
Blick von der Information in den Flur, der zu Saal 1, Wartebereich (mit den Rechtsantragstellen) und Sälen 2 und 3 führt.
Blick von der Information in den Flur, der zum Sanitärbereich und Sälen 4 und 5 führt.
Wartebereich und Rechtsantragstelle(n) des Sozialgerichts (und des Verwaltungsgerichts)

